- Category
- Utilities & tools
- Available on
- PC, Mobile, Surface Hub, HoloLens
- OS
- Windows 10 version 17763.0 or higher
- languages
- English (United States)
Introducing CAD / DXF Viewer for Windows: A Reliable Tool for Your Design Needs
If you're working with complex CAD or DXF files and need a straightforward, efficient viewer for Windows, the CAD / DXF Viewer by Mia Sarah offers a clean and functional solution. Perfectly suited for professionals and hobbyists alike, this app promises quick access to your technical drawings without the hassle of heavy CAD software.
Who's Behind the Curtain?
This app is developed by Mia Sarah, a developer team focused on creating user-friendly utility tools for Windows users. Their commitment to simplicity and performance is evident in this viewer, which aims to streamline the process of viewing CAD and DXF files with ease and accuracy.
Key Features That Stand Out
- Fast and Accurate Viewing: Load your CAD files swiftly with crisp rendering, ensuring you can review designs without delays.
- Multi-Format Support: Besides standard DWG and DXF files, the app elegantly supports various file formats, broadening its usability across different projects.
- User-Friendly Interface: The clean interface allows users of all experience levels to navigate effortlessly, reducing the learning curve.
- Minimal System Requirements: Operates smoothly on most Windows systems, making it accessible to a wide user base.
Experience the App: A Closer Look
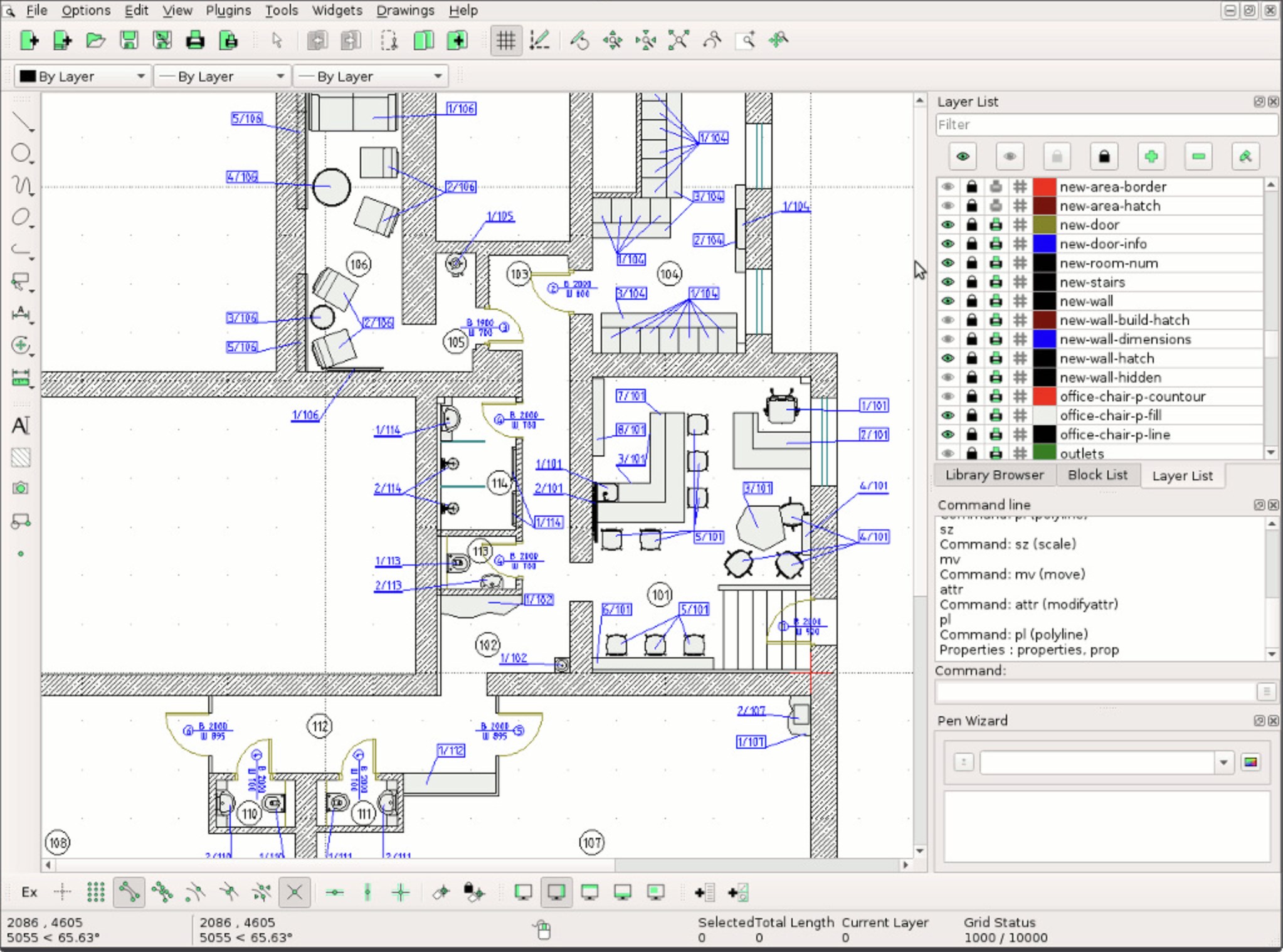
Stepping into the world of CAD / DXF Viewer feels like entering a well-organized workspace—everything is neatly laid out, inviting you to explore your files. The interface is simple yet intuitive, much like flipping through a well-kept design binder. It caters to users ranging from seasoned engineers to casual draftsmen, making file review tasks less daunting.
Intuitive Interface and Smooth Navigation
The app's interface boldly prioritizes clarity. Icons are predictable, menus are logically arranged, and loading files feels like unfurling a well-presented map—no confusion, just straightforward access. Navigation through zoom, pan, and rotation controls is fluid, akin to turning the pages of a sleek, digital notebook. This enhances the overall user experience, shortening the learning curve significantly.
Core Functional Modules: Viewing, Annotations, and Exporting
Firstly, the core function—viewing—is remarkably responsive. Large, detailed CAD files are rendered crisply and without lag, giving you a detailed look at components with just a click. The app's support for multi-format files means you're not bound to a specific CAD version, which is a notable advantage over some competitors that limit you to proprietary formats.
Secondly, the annotation feature, though basic, allows users to add comments directly onto the drawings, facilitating collaborative review or personal notes. While not heavily feature-rich, it's a valuable addition considering the app's primary focus on viewing rather than editing.
Finally, exporting options enable quick snapshots or saved views, helping in creating reports or sharing selected parts of a design. Overall, these features are seamlessly integrated to ensure your workflow remains efficient and hassle-free.
What Sets It Apart?
Compared to other utility tools in the CAD viewing space, this app's standout feature is its balanced focus on speed and simplicity without sacrificing too much in advanced capabilities. Many viewers either bog down with unnecessarily complex interfaces or lack support for multiple file formats. This app finds a sweet spot, providing quick access and broad format support in a lightweight package.
Moreover, its minimalistic approach means fewer system resource demands, making it more suitable for older or lower-spec machines—often a challenge with more comprehensive CAD tools. This efficiency ensures that your machine isn't bogged down just to view essential design details.
Final Verdict: A User-Centric, Reliable Viewer
If your needs are primarily to view, review, and share CAD or DXF files without the fuss of heavy CAD programs, this viewer is a solid choice. It's not packed with unnecessary features but excels in core functionalities, making it perfect for quick inspections and basic collaboration.
I recommend it for engineers, architects, or hobbyists who require a fast, straightforward solution. Its emphasis on speed, format support, and ease of use makes it a dependable tool in your digital toolbox. For those needing more advanced editing or design capabilities, additional software might be necessary—but for dedicated viewing, Mia Sarah's app is quite compelling.
CAD / DXF Viewer
Utilities & tools 4.9Pros
- Intuitive interface
- Broad file compatibility
- Fast rendering speed
- Zoom and pan features
- Free to use
Cons
- Limited editing capabilities (impact: Low)
- Lacks advanced measurement tools (impact: Medium)
- Occasional lag with very large files (impact: Medium)
- Limited customization options (impact: Low)
- No support for 3D models (impact: High)
Frequently Asked Questions
How do I open a CAD/DXF/DWG file in this app?
Launch the app, then tap 'Open' on the main screen and select your CAD or DXF/DWG file from your device storage.
Can I edit CAD/DXF files within the app?
Yes, navigate to the file and select 'Edit' to make modifications, available in the core features menu.
How do I convert a DXF file to PDF or image formats?
Open the file, tap 'Convert', choose the desired format (PDF, JPG, PNG, BMP), then confirm and save your output.
What formats does the app support for saving or exporting?
Supports DXF, PDF, JPG, PNG, BMP for export and conversion, suitable for various industry needs.
Is this app suitable for construction or home decoration projects?
Yes, it provides essential viewing and editing tools useful in construction, machinery, and home decoration industries.
How do I subscribe or purchase premium features?
Go to Settings > Account > Subscription to view plans and complete your purchase or manage your subscription.
What are the benefits of upgrading to a paid plan?
Upgraded plans unlock advanced editing, unlimited conversions, higher resolution outputs, and no ads for enhanced productivity.
Is there a free trial available for the premium features?
Yes, the app offers a free trial; enable it via Settings > Account > Free Trial before subscribing.
What should I do if the app crashes or freezes?
Try restarting the app, ensure your device is updated, and contact support via Settings > Help if issues persist.
Similar Apps
Reg Organizer
for Windows 5
Human Typer
for Windows 5
My-Technician
for Windows 5
CAD Design Software
for Windows 5
STL 3D Viewer Pro
for Windows 5
Transparent Taskbar·
for Windows 4.9
Weather Radar Pro.
for Windows 4.9
EPUB+ Reader
for Windows 4.9
OMEN Gaming Hub
for Windows 4.9
Node.js/JavaScript Runner
for Windows 4.9
Torrent Downloader+
for Windows 4.9
